Wohnhaus mit Feld, Wald- und Wiesenflächen
95478 Kemnath, Deutschland
Unsere Referenzen Auf Anfrage - Einfamilienhaus, Reihenhaus
2287 200 m² 1983 Baujahr 65981 m²

Objektbeschreibung

Zum Verkauf steht die ehemalige Schmiede in Waldeck – ein geschichtsträchtiges Anwesen mit viel Potenzial.
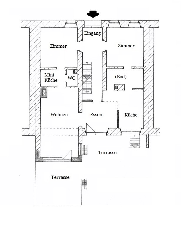
Das massiv errichtete Wohnhaus aus ca. 1810 ist teilunterkellert und bietet rund 200 m² Wohnfläche, verteilt auf zwei separate Wohneinheiten mit jeweils vier Zimmern. Ideal für eine große Familie, mehrere Generationen oder kreative Wohnkonzepte. Auch eine Umgestaltung in mehrere kleinere Einheiten ist denkbar.

1983 erfolgte eine umfassende Grundsanierung mit Modernisierung von Elektrik, Fenstern, Türen und Bädern. Die Öl-Zentralheizung wurde 2019 erneuert.
Der aktuelle Zustand entspricht somit dem Stand dieser Maßnahmen.

Das Anwesen eignet sich besonders für handwerklich geschickte Käufer oder Investoren, die den Charme eines Altbestandes zu schätzen wissen und dessen Möglichkeiten erkennen. Ob großzügiges Einfamilienhaus, Mehrgenerationenwohnen, Wohnen und Arbeiten oder Ferienwohnungen – hier ist viel Raum für individuelle Ideen.

Ein besonderes Plus sind die umfangreichen Ländereien, die zahlreiche Nutzungsmöglichkeiten eröffnen – von Tierhaltung bis hin zur Bewirtschaftung der Obstwiese. Das Grünland mit Scheune ist nur wenige Gehminuten entfernt und auch mit Fahrzeugen gut erreichbar.

Die im Angebot enthaltenen Grundstücke (Gesamtfläche über 6 Hektar) gliedern sich wie folgt:

Wohnhaus mit Gebäude- und Freifläche: ca. 491 m²
Grünland mit Wirtschaftsgebäude und Gehölz: ca. 30.827 m²
Waldflächen: ca. 22.932 m²
Grünland: ca. 9.530 m²
Grundstück am Fuße des Schlossbergs: ca. 2.201 m²

Das Anwesen wird bevorzugt als Gesamtes veräußert. Ein Einzelverkauf einzelner Grundstücke oder des Wohnhauses ist jedoch nicht ausgeschlossen.

Wir freuen uns auf Ihre Kontaktaufnahme und beraten Sie gerne persönlich.
Vereinbaren Sie einen Besichtigungstermin und entdecken Sie die Möglichkeiten dieses besonderen Anwesens.

Lage

Waldeck ist ein Gemeindeteil der Stadt Kemnath im oberpfälzischen Landkreis Tirschenreuth.
Das Anwesen befindet sich in zentraler Lage in der Ortsmitte. Das Grundstück liegt in leichter Hanglage und ist von zwei Seiten anfahrbar.
Die Stadt Kemnath liegt in ca. 6 km Entfernung und verfügt über alle Einrichtungen des täglichen Bedarfs, sowie Kindergärten, Grund- und Realschule.
Waldeck zeichnet sich durch seine idylische und naturnahe Lage aus und ist umgeben von Wiesen, Wald und Feldern.

Ausstattung

* Fliesen-,Parkett-, Dielen,- und Teppichböden
* doppeltisolierverglaste Fenster mit Holzrahmen
* zwei Badezimmer mit Wanne und Waschbecken im 1.OG
* zwei weitere Badezimmer im EG im Rohbauzustand
* eine Terrasse in Süd-Westlage
* ein Balkon in Süd-Westlage
* Öl-Zentralheizung 2019 erneuert
* Glasfaseranschluss vorhanden
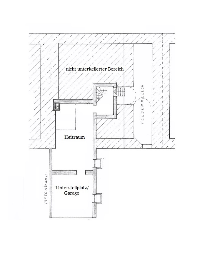
* teilunterkellert, Felsenkeller
* eine Garage im Untergeschoss
* eingewachsener Gartenbereich

Details

  • Grundstücksfläche: 65.981 m²
  • Zimmer insgesamt: 8
  • Heizungsart: Zentralheizung
  • Zusatzinformation zur Lage: Waldeck
  • Kaufpreis: 380.000 €
  • Courtage: 3.57 %
  • Anzahl Garagenstellplätze: 1
  • Balkone: 1
  • Terrassen: 1
  • Befeuerung: Öl
  • Bodenbelag: Dielen
  • Baujahr: 1983
  • Zustand: renovierungsbedürftig
  • Immobilie ist verfügbar ab: sofort

Merkmale

Grundrisse

Grundriss ohne Maßstab EG

Grundriss ohne Maßstab OG

Grundriss ohne Maßstab UG

Ungefähre Lage

Ähnliche Immobilien