Zu Verkaufen €185.000 - Einfamilienhaus
Träumen Sie davon, morgens den Blick auf eine große Wiese schweifen zu lassen auf der die eigenen Tiere grasen? Möchten Sie Gemüse aus dem eigenen Garten ernten und gleichzeitig die Geborgenheit eines historischen Fachwerkhauses genießen? Dieses besondere Anwesen in Hagen-Hohenlimburg bietet Ihnen all das  und noch mehr.
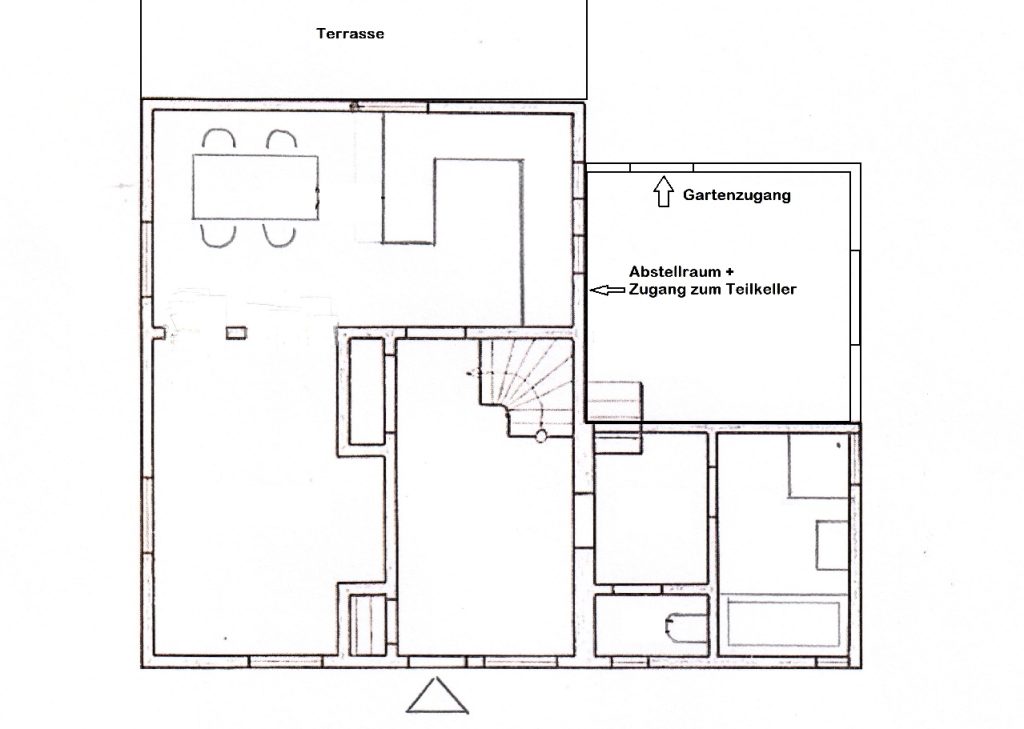
Das zweigeschossige Fachwerkhaus verfügt über ca. 80 m² Wohnfläche, aufgeteilt in Erd-/ und Obergeschoss und einen seitlichen Anbau sowie über Nutzfläche in der Teilunterkellerung und dem praktischen Spitzboden. Die Immobilie steht auf einem Höhenzug im Wesselbachtal auf einem großzügigen insgesamt ca. 2.700 m² großen Grundstück, das vollständig eingezäunt ist. Damit eröffnet es Ihnen die Freiheit, Ihre Träume von Tierhaltung, Selbstversorgung oder einfach einem naturverbundenen Leben im Grünen zu verwirklichen.
Der Hausgarten mit Terrasse ist vom Weideland durch einen Zaun getrennt  so bleibt Ihr Rückzugsort geschützt, während Sie gleichzeitig die Möglichkeiten der angrenzenden Fläche nutzen können. Eine gepflasterte Zufahrt verbindet Garten und Grundstück und dient zugleich als Abstellfläche für ein Fahrzeug und als Zugang zur Weide, die aktuell von Schafen beweidet wird.
Im Inneren des Hauses empfängt Sie eine Eingangsdiele, die den Weg in das Obergeschoss, den Spitzboden und den offenen Wohn-/ Ess-/und Küchenbereich im Erdgeschoss öffnet. Auch der Anbau ist von hier aus zugänglich: Dort befinden sich ein separates WC, ein Tageslichtbad mit Dusche und Wanne sowie ein weiterer, tiefer gelegener Raum mit Zugang zum Garten und zur Teilunterkellerung.
Das Herzstück des Hauses ist der offene Wohn-/, Ess-/ und Küchenbereich im Erdgeschoss. Ein großer Kaminofen spendet hier wohlige Wärme, während die freiliegenden Fachwerkbalken eine unverwechselbare Atmosphäre schaffen  urig, behaglich und voller Charakter.
Im Obergeschoss stehen drei Räume zur Verfügung, die sich flexibel als Schlaf-/, Gäste-/ oder Arbeitszimmer nutzen lassen. Die Deckenhöhen zwischen 1,90 m und 2,22 m unterstreichen den traditionellen Charme des Hauses.
Zusätzlichen Stauraum bieten der Spitzboden, der große Nebenraum im Anbau sowie die Teilunterkellerung.
Dieses Fachwerkhaus ist mehr als nur ein Zuhause  es ist ein Lebensgefühl. Hier finden Sie Ruhe, Naturverbundenheit und Raum zur Entfaltung. Ein idealer Ort für Menschen, die das Besondere suchen, die Freiheit schätzen und vielleicht schon länger davon träumen, ein Stück Selbstversorgung und Ursprünglichkeit in ihr Leben zu holen.
Hagen- Wesselbach
Die Immobilie liegt im oberen Bereich des idyllischen Wesselbachtal in Hagen-Hohenlimburg  einer Lage, die durch Ruhe, und Naturverbundenheit geprägt ist. Eingebettet zwischen Wiesen und Wäldern eröffnet sich hier ein Lebensumfeld, das zum Entschleunigen einlädt. Spaziergänge direkt vor der Haustür, weite Blicke ins Grüne und die unmittelbare Nähe zur Natur machen diesen Standort besonders für Menschen attraktiv, die Erholung und Freiraum schätzen.
Trotz der idyllischen Abgeschiedenheit ist die infrastrukturelle Anbindung sehr gut: Der Hohenlimburger Busbahnhof ist in wenigen Minuten erreichbar und bietet gute Verbindungen in die umliegenden Stadtteile und nach Hagen. Zudem befinden sich hier Einkaufsmöglichkeiten: Viele weitere Einrichtungen des alltäglichen Bedarfs u.a. Ärzte, Banken… sind in der Hohenlimburger Innenstadt zu finden.
Auch die Autobahnanschlüsse zur A46 und A45 sind in wenigen Minuten erreichbar, ohne dass Sie hier etwas vom Autolärm mitbekommen.
Die Lage verbindet somit das Beste aus zwei Welten: Ländliche Ruhe und Geborgenheit im Grünen  und zugleich die komfortable Nähe zu einer gut ausgebauten Infrastruktur. Ein Ort, an dem man durchatmen und zur Ruhe kommen kann, ohne auf die Vorzüge einer guten Anbindung verzichten zu müssen.
Dachform: Haupthaus Satteldach mit Unterspannbahn, Spitzboden als Abstellfläche vorhanden, Anbau mit Pultdach
Fassade: Fachwerk
Decken: KG: Stahlträgerdecke, Geschossdecke: Holzbalkendecke, Fundament aus Bruchsteinen
Fenster: Doppelverglaste Holzfenster, Bj. 1980, zwei Dachflächen-/ sowie Giebelfenster im Spitzboden
Eingangstür: Holz
Zimmertüren/ Zargen: Holz
Bodenbeläge: EG gefliest, OG Klick- Vinyl
Badezimmer: Tageslichtbad im Anbau mit Badewanne und Dusche, separates WC mit Fenster
Geschosstreppen: Stahlkonstruktion mit Holzstufen
Balkon/Terrasse: Ca. 12 m² große gepflasterte Terrasse
Heizungsart: Gaszentralheizung mit Brennwerttechnik, Hersteller Wolf, Baujahr 2021
Warmwasser: Zentral über die Heizungsanlage
Elektrik: Mit Kippsicherungen und FI-Schutzschalter
Garage /Stellplatz: 1 Außenstellplatz vorhanden, weitere Stellplätze wären auf dem Grundstück möglich
Grundstück: Ca. 2.700 m² Kaufgrundstück, ca. 2.300 m² Weideland mit Hanglage und Stallungen, ca. 400 m² Hausgrundstück mit zwei Außenzugängen, Grundstücke sind vollständig getrennt eingezäunt.
Nebenkosten: 600 EUR/ Jahr Wohngebäudeversicherung, 1.965 EUR/ Jahr Grundbesitzabgaben inkl. Grundsteuer
Keller: Teilunterkellerung mit geringerer Deckenhöhe
Sonstiges: Das Grundstück ist baulastenfrei.
Der energieausweis wird den Interessenten vorgelegt und in Kopie übergeben.
Energieausweis: Bedarfsausweis
gültig von: 22.02.2022
Endenergiebedarf Wärme: 365.4 kWh/(m²a)
Wesentliche Energieträger Heizung: Befeuerung Gas
Energieeffizienzklasse: H
Baujahr Haus: 1900 (geschätzt)
Baujahr Heizung: 2021
Details
- Grundstücksfläche: 2.668 m²
- Zimmer insgesamt: 4
- Anzahl Stellplätze: 1
- Heizungsart: Zentralheizung
- Anzahl Etagen: 2,0
- Zusatzinformation zur Lage: Wesselbach
- Kaufpreis: 185.000 €
- Courtage: 3.57 %
- Anzahl Außenstellplätze: 1
- Terrassen: 1
- Wohneinheiten: 1
- Art der Ausstattung: Standard
- Befeuerung: Gas
- Bodenbelag: Fliesen, Laminat
- Badausstattung: Dusche, Badewanne, Fenster im Badezimmer
- Stellplatzart: Freiplatz
- Baujahr: 1900
- Zustand: gepflegt
- Letzte Modernisierung: 2021
- Immobilie ist verfügbar ab: sofort

















 
		 
								 
								 
		 
		 
		 
								