Zu Verkaufen €1.550.000 - Halle
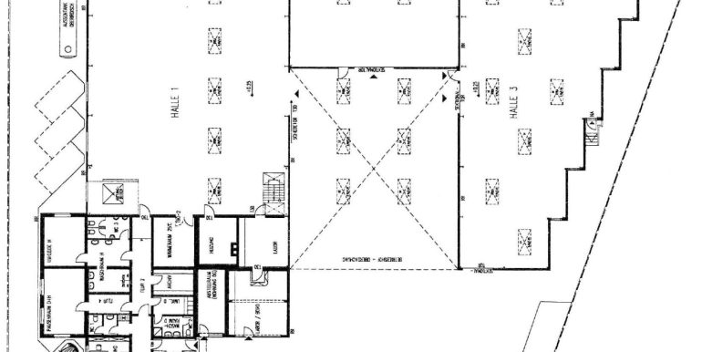
Das Objekt wurde auf einem 4.721 m² großen Erbpachtgrundstück erbaut. Große Rolltore ermöglichen das bequeme Bestücken der Lager- und Produktionsflächen, welche sich über 1.868 m² erstreckt. Die Fläche ist aufgeteilt in drei Hallenschiffe, welche miteinander verbunden sind. Wenn eine kleinteilige Nutzung der Flächen gewünscht ist, können die drei Hallen problemlos getrennt werden. Es besteht bereits jeweils eine eigene Stromverteilung für jede Halle. Diese können aufgeteilt werden in 898 m², 451 m² und 519 m². Jedes Hallenschiff verfügt natürlich über mindestens ein Rolltor. Die große Halle hat angrenzend noch ein überdachtes Außenlager von 90 m². Die drei Hallen werden über eine 336 m² große, überdachte Anlieferungsfläche bestückt. Das trockene Entladen eines Sattelschleppers ist hier unproblematisch! Tagsüber ist künstliches Licht kaum von Nöten. Die Hallenfläche verfügt über 28 Lichtkuppeln im Dach, wodurch die Fläche hell erleuchtet wird.
Angrenzend befinden sich die Büro- und Nebenflächen mit einer Größe von 418 m². Im Erdgeschoss befinden sich ausschließlich Büroräume. Durch einen Leitungswasserschaden werden diese zurzeit komplett renoviert.
Im oberen Teil des Gebäudes ist eine Wohneinheit vorzufinden, welche sich über 113 m² erstreckt.
Im Außenbereich stehen Ihnen genügend Stellplätze und zwei Fertiggaragen für Mitarbeiter und Ihre Kunden zur Verfügung.
Das Gewerbeobjekt liegt im Süd-Osten des Stadtgebietes der Kreisstadt Unna im stark frequentierten Industriepark. Günstige Verkehrsanbindung an das Autobahnkreuz Unna-Ost, die BAB A44 (Entfernung ca. 0,5 KM sowie der A1 + A2). Die Haltestelle des öffentlichen Personennahverkehr liegt ca. 100 m vom Grundstück entfernt. Unna ist an das S-Bahn-Netz VRR angeschlossen.
Details
- Grundstücksfläche: 4.721 m²
- Zimmer insgesamt: 10
- Anzahl Stellplätze: 12
- Heizungsart: Zentralheizung
- Erbpacht: 5.381 €
- Kaufpreis: 1.550.000 €
- Courtage: 3.57 %
- Anzahl Außenstellplätze: 10
- Anzahl Garagenstellplätze: 2
- Nutzfläche: 2.599 m²
- Gesamtfläche: 2.599 m²
- Lagerfläche: 2.294 m²
- Bürofläche: 418 m²
- Sonstige Fläche: 113 m²
- Wohneinheiten: 1
- Art der Ausstattung: Standard
- Befeuerung: Gas
- Stellplatzart: Garage, Freiplatz
- Baujahr: 1979
- Zustand: gepflegt
- Immobilie ist verfügbar ab: Nach Absprache
























 
		 
		 
		 
		 
								