Zu Verkaufen €165.000 - Etagenwohnung
Die angebotene Eigentumswohnung befindet sich im 1. Obergeschoss eines gepflegten Mehrparteienhauses in Köln-Mülheim.
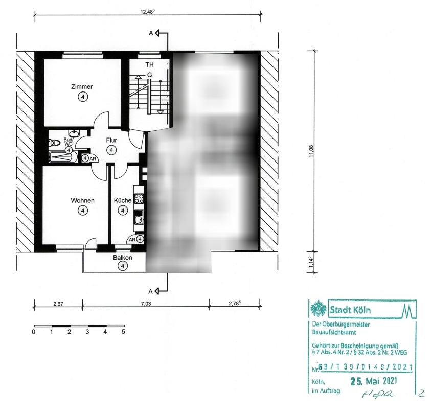
Die Wohnfläche von 52,35 m² verteilt sich wie folgt:
*Wohnzimmer (16,67 m²),
*Balkon (3,92 m² zu 50 % = 1,96 m²)
*Schlafzimmer (16,49 m²),
*Küche (7,69 m²),
*Bad (3,70 m²),
*Flur (5,31 m²),
*Abstell-Nischen (0,26 m² + 0,26 m² = 0,52 m²).
Alle Räume sind ideal geschnitten, sodass Sie Ihre Möbel problemlos platzieren können.
Ihrer neuen Eigentumswohnung sind folgende Sondernutzungsrechte zugeordnet:
*Kellerraum
Die Miteigentumsanteile belaufen sich auf 81 von 1.000.
Die Instandhaltungsrücklage der Eigentümergemeinschaft betrug zum 31.12.2024: 23.011,53 €. Der Anteil dieser Wohnung an der Gesamt-Instandhaltungsrücklage des Gebäudes beträgt 1.863,93 € (Stand 31.12.2024).
Das monatliche Hausgeld für das Wirtschaftsjahr 2025 beträgt 294,65 € inkl. Heizkosten. Hiervon können rd. 176 € auf einen etwaigen Mieter umgelegt werden. Die übrigen, nicht-umlagefähigen rd. 118 € setzen sich zusammen aus Verwaltergebühr & Versammlungsgebühr (rd. 29 €), Reparaturen & Bankgebühren (rd. 22 €) und Zuführung in die Instandhaltungsrücklage (67,50 €).
Warmwasser wird über eine eigene Warmwasser-Gastherme erzeugt, für die der jeweilige Bewohner der Wohnung einen separaten Versorgungsvertrag abzuschließen hat. Die Funktionstüchtigkeit der Therme kann nicht bestätigt werden.
Die hier angebotene Wohnung befindet sich im lebendigen Stadtteil Mülheim, der zur pulsierenden Metropole Köln gehört. Diese Wohngegend verbindet urbanes Flair mit historischem Charme und bietet eine ideale Kombination aus Wohnen und Arbeiten. Die Verkehrsanbindung ist exzellent: ÖPNV-Verbindungen sind in wenigen Gehminuten erreichbar und sorgen für eine optimale Anbindung an das Kölner Stadtzentrum sowie die umliegenden Stadtteile.
Für den täglichen Bedarf stehen zahlreiche Einkaufsmöglichkeiten, Supermärkte und Fachgeschäfte zur Verfügung, die den Alltag komfortabel gestalten. Auch gastronomisch hat Mülheim viel zu bieten – von gemütlichen Cafés bis zu internationalen Restaurants. Erholungssuchende und Sportbegeisterte profitieren von den nahegelegenen Grünflächen und dem Rheinpark, der zu ausgedehnten Spaziergängen und Freizeitaktivitäten einlädt.
Bildungseinrichtungen wie Schulen und Kindergärten befinden sich ebenfalls in der Nähe, was den Standort besonders attraktiv für Familien macht. Zudem verspricht das kulturelle Angebot von Mülheim, mit seinen Theatern und regelmäßigen Veranstaltungen, ein abwechslungsreiches Freizeitprogramm. Die besondere Kombination aus urbanem Leben und naturnaher Umgebung macht diesen Stadtteil zu einer begehrten Wohngegend.
Überzeugen Sie sich selbst:
+ Unbewohnt – Vermietung oder Selbstnutzung nach Renovierung ab sofort möglich
+ Moderner & neuwertiger Balkon
+ Kellerraum
+ Kein Denkmalschutz
– Kein zugeordneter PKW-Stellplatz. Kostenlose Parkmöglichkeiten in der direkten Nähe
– Renovierungs- / Modernisierungsbedarf
Details
- Zimmer insgesamt: 2
- Etage: 1
- Hausgeld: 294,65 €
- Kaufpreis: 165.000 €
- Courtage: 3,57% inkl. MwSt. vom beurkundeten Kaufpreis
- Balkone: 1
- Befeuerung: Gas
- Baujahr: 1955









