Zu Verkaufen € 170.000 - DG-Wohnung
Objektbeschreibung
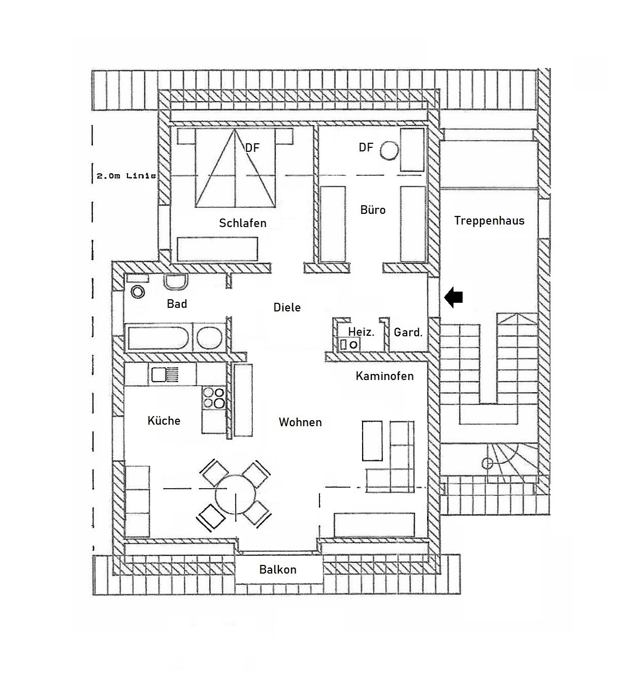
In ruhiger Aussichtslage von Triefenstein erwartet Sie diese gepflegte 3-Zimmer-Wohnung mit hellen und attraktiv geschnittenen Räumlichkeiten.
– Hier werden Sie sich wohl fühlen –
Mit einer Wohnfläche von ca. 65 m² überzeugt die Wohnung durch ihren gelungenen Grundriss und ihre helle und freundliche Atmosphäre.
Das Gebäude wurde 1996 massiv errichtet und stetig instand gehalten.
Der Gesamtzustand kann als sehr gepflegt bezeichnet werden.
Die Wohnung wird zum Anfang des Jahres 2027 frei und steht dann auch zur Selbstnutzung zur Verfügung.
Vereinbaren Sie gerne einen persönlichen Besichtigungstermin, wir freuen uns auf Ihre Anfrage.
Lage
Der Markt Triefenstein liegt malerisch in der Region Main-Spessart, nahe der Kleinstadt Markheidenfeld.
Es erwartet Sie eine ruhige und gepflegte Wohnumgebung in einer Anliegerstraße.
Einkaufsmöglichkeiten, Schulen und Ärzte sind gut erreichbar.
Ausstattung
• 6-Parteien Wohnhaus in ruhiger Aussichtslage
• Dachgeschosswohnung im 2. Obergeschoss
• kleiner, sonniger Balkon mit Aussicht
• Kaminofen für gemütliche Atmosphäre
• Tageslichtbad mit Dusche u. Wanne
• Einbauküche
• Abstellraum in der Dachspitze ca. 15 qm
• Kellerraum ca. 8 qm
• Wasch- u. Trockenraum im Gemeinschaftskeller
• teilw. bereits erneuerte Kunststofffenster
• Gasetagenheizung 2017 erneuert
• Stellplatz im freien
Details
- Zimmer insgesamt: 3
- Anzahl Stellplätze: 1
- Heizungsart: Etagenheizung
- Etage: 2
- Hausgeld: 175 €
- Kaufpreis: 170.000 €
- Courtage: 3.57 %
- Anzahl Außenstellplätze: 1
- Nutzfläche: 23 m²
- Balkone: 1
- Befeuerung: Gas
- Badausstattung: Dusche, Badewanne
- Küche: Einbauküche, Offene Küche
- Stellplatzart: Freiplatz
- Baujahr: 1996
- Zustand: gepflegt
- Immobilie ist verfügbar ab: März 2027

















