Zu Verkaufen € 349.000 - Einfamilienhaus
Objektbeschreibung
Dieses Haus ist mehr als nur vier Wände es ist der Ort, an dem Sie Sommerabende auf der Terrasse genießen, Kinder im Garten toben und Freunde auf ein Glas Wein auf dem Balkon empfangen.
1995 erbaut und laufend gepflegt, bietet Ihnen das Einfamilienhaus in Höpfingen alles, was das Herz begehrt: Platz, Sonne, Stauraum und jede Menge Möglichkeiten für Ihr persönliches Wohngefühl.
Und das Beste: Der Keller wurde 2024 komplett frisch saniert sorgenfrei einziehen ist hier die Devise.
So wohnen Sie:
Erdgeschoss
Ein freundlicher Eingangsbereich mit Windfang und Treppe führt in den offenen Wohn- und Essbereich. Das Wohnzimmer hat direkten Zugang zur sonnigen Terrasse, die offene Küche ebenfalls mit Zugang zur hinteren Terrasse ideal, wenn man Gäste bewirtet oder schnell in den Garten möchte.
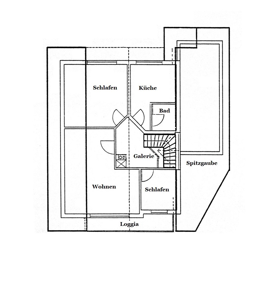
Dachgeschoss
Im Dachgeschoss wartet Potenzial: eine gemütliche Einliegerwohnung mit zwei Schlafzimmern, kleinem Bad, vorbereiteter Küche und großem Wohnraum mit Südbalkon ideal für Familie oder Gäste.
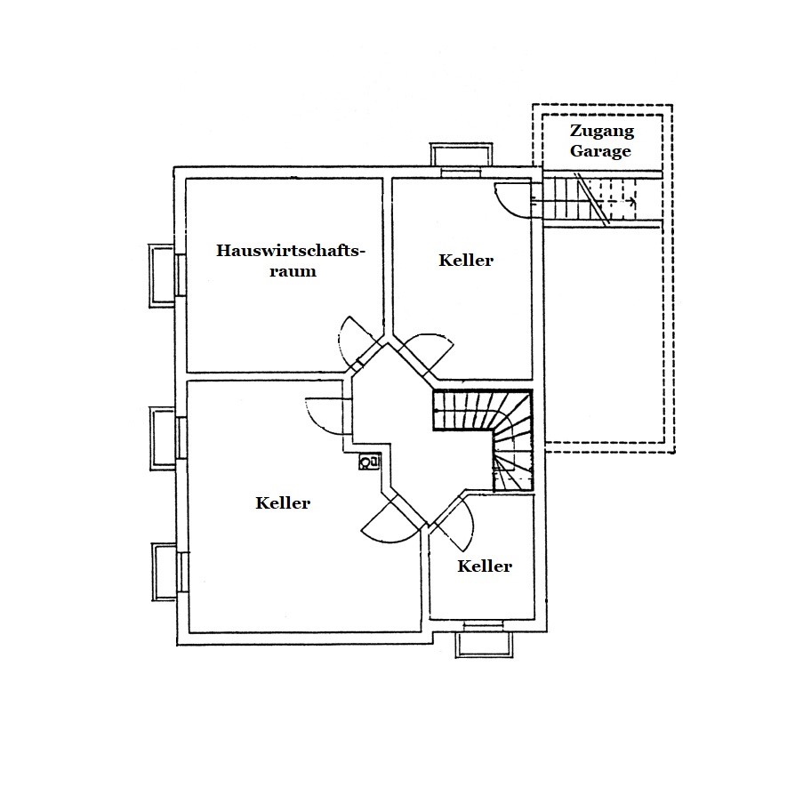
Kellergeschoss
Ca. 88 m² praktische Nutzfläche mit Abstellräumen, Waschküche, Technikraum und direktem Zugang zur Garage. Alles frisch gemacht im Jahr 2024!
Außenbereich
Der Garten ist überschaubar, pflegeleicht und ideal für ein paar Gemüsebeete, Blumen oder Ihre Lieblingsecke zum Entspannen. Dazu eine sonnige Südterrasse, ein Schuppen, ein Gewächshaus, eine Garage und gleich fünf Stellplätze Platzprobleme sind hier ein Fremdwort.
Hier ziehen Sie sorgenfrei ein.
Lage
Ruhig wohnen, zentral leben: Diese Straße in Höpfingen bietet ein angenehmes Umfeld, kurze Wege zu Kindergarten, Schulen, Einkaufsmöglichkeiten und Freizeitangeboten. Dank der B27 sind Sie bestens angebunden ob nach Buchen, Tauberbischofsheim oder Mosbach.
Ausstattung
Ihre Highlights:
Südterrasse perfekt für Kaffee in der Sonne oder den Grillabend mit Freunden
Pflegeleichter Garten klein, fein und ideal zum Gärtnern ohne großen Aufwand
Großzügiger Wohn- und Essbereich offen, hell und kommunikativ
Balkon im Dachgeschoss Ihr privater Rückzugsort mit Sonne
5 Stellplätze + Garage nie mehr Parkplatzsorgen
Frisch sanierter Keller modern, trocken und vielseitig nutzbar
Details
- Grundstücksfläche: 533 m²
- Zimmer insgesamt: 6
- Heizungsart: Etagenheizung, Fußbodenheizung
- Anzahl Etagen: 3,0
- Kaufpreis: 349.000 €
- Courtage: 3.57 %
- Anzahl Garagenstellplätze: 1
- Nutzfläche: 113,27 m²
- Wohneinheiten: 5
- Art der Ausstattung: Standard
- Befeuerung: Elektro
- Bodenbelag: Fliesen, Laminat
- Stellplatzart: Garage, Freiplatz
- Baujahr: 1995
- Zustand: gepflegt
- Immobilie ist verfügbar ab: sofort




















